
GW系列高温风机是在吸收同类高温风机结构基础上加以改进后而定型。本风机适用于热风循环、烘干设备、热风炉等高温环境下气体输送或进入气体温度在 100 ℃ 一 300 ' C 时,风机轴承座不带水冷风冷装置,能连续运转且全压效率达到风机标准效率值。
GW系列高温插入式风机由于轴承不带水冷装置,可节约大量的工业用水,而且具有结构紧凑、安装、调试、维修方便,使用寿命长等特点,是当前国内高温风机中较为理想的新一代产品,经上海机电设计院等单位项目设计中推荐选用,深受用户欢迎。
GW系列风机分为普通高温与防爆高温,插入式普通高温和防爆高温四种类型。普通型为整体式装配,配有传动防护罩壳,单吸入进气,机号有 NO : 3 . 6 #、 4 . 0 #、 4 . 5 #、 5 . 0 #、 6 . 0 #、 7 . 0 #、 8 . 0 #、 9 . 5 #、 10 . 0 #、 12 . 0 #共 10 个规格,风机可制成左旋转和右旋转两种类型,风机的出风口位置以机壳的出口角度表示分别为“左、右旋”,均可制成 0 “、 90 。、 135 。、 180 “、 270 “五种角度,也可按用户要求制成其他角度,可代配钢质弹簧减振和消声器,但须订货时另行提出。
凡进气条件相当,性能又相适应,均可选用,但温度不超过 300 ℃ ,如用户在选用中要求气体温度大 300 ℃ 时,应提出要求特殊订货。
本风机由机壳、叶轮、进风口、高温传动部、整体机架等部分组成。其中叶轮经静平衡和两次动平衡严格校正,确保风机运行平稳。
传动部中主轴以钢经调质处理,配用国产高温轴承,特殊环境可配用进口轴承,润滑脂润滑。
GW系列插入式高温风机参数
产品特点:单进风,后倾弧形叶片,耐高温(可达600℃),效率高,结构紧凑
传动结构:C式
产品机号:280#-2000#
风量范围:1800-200000m3/h
全压范围:250-4000pa
产品用途:涂装设备、热风炉设备、干燥设备等
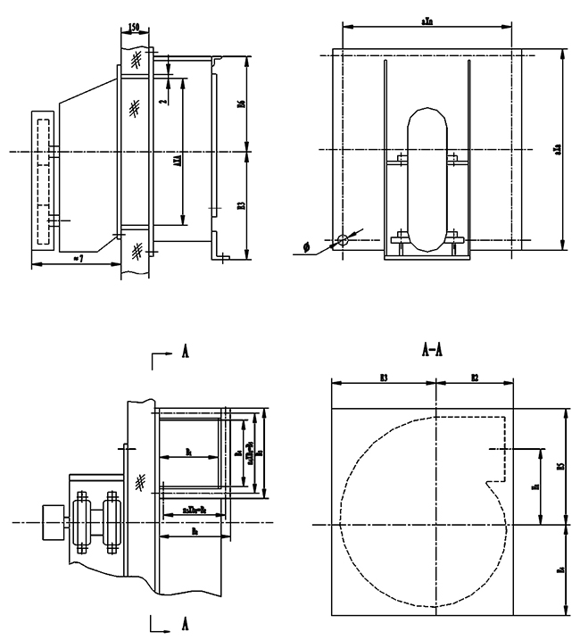
GW系列插入式高温风机安装尺寸图
本图为右旋90°




集科技开发、产品设计、制造销售、安装服务为一体的现代化工科型经济实体
扫一扫 手机站