
一、风机特点:
DKF系列低噪声离心通风机是YDW系列低噪声离心通风机的派生扩大系列,满足了空调设计选用中任意风量、风压的要求,该产品具有噪声低、效率高、风量大、转速低、质量轻等特点,它包括前倾型(DKF系列)、后倾(DKF<H>系列),它们分别由前向和后向叶轮,对数螺旋机壳、圆弧流线型进风口等部件组成。使用全镀锌板,模具化成型,可调节框架结构,皮带轮可左右调转使用。是空调、净化、机漆房和冷冻行业中理想的配套产品。
产品特点:前倾多翼叶轮,结构紧凑、噪声低、风量大、效率高
传动结构:E式
产品机号:250#-1000#
风量范围:2000-108000
风压范围:200-1800pa
产品用途:空调、净化、喷漆房等通风配套,可定制耐温200℃以内的高温环境
二、风机结构:
1、机壳为整体用镀锌钢板免焊咬口制作,外观大方。
2、前倾叶轮为前向多翼圆弧型叶片,与前盘、中盘铆接而成。其材料选用镀锌钢板精工制作。后倾叶轮为后向弧型叶片,与前盘、中盘采用专用夹具固定焊接而成,为保证叶轮精度,叶轮的全部零件均用模具一次冲压成型,组合后再经静、动平衡校正。
3、轴材料选用优质碳素结构钢,在设计时均经过二次临界转速校核,强度高,刚性好,稳定性好。
4、进风口选用镀锌板,经模具加工而成,它安装于风机两侧,与轴向平行的截面为曲线型,气体流畅,损失少。
5、轴承选用进口轴承质量可靠,经久耐用,使用寿命长,运转平稳。
6、采用三角带传动,改变带轮直径可获取大量工况,因此能完全满足空调空机对风量风压的要求。
三、用途:
1、工业、民用、矿中、隧道、地铁等建筑物通风换气。
2、与各种形式的空调器、空气净化器等配套使用。
3、用于各类汽车烤漆房、烘房等通风换气。
四、用户须知:
1、风机输送的介质为空气及无腐蚀、不易爆、不含粘性物质的气体,介质所含的尘土及硬质颗粒物不大于120mg/m3
2、选择风机的型号,根据风量、风压、高效的原则确定型号,由风量、风压(全压)确定风机该工况的转速、轴功率、噪声等技术参数。
3、风机所用轴承,均用调心轴承装在轴承座内,设有注油嘴,轴承温度在70℃以下,轴承温度每上升15℃,则注油间隔时间减少至半。使用锂基润滑脂轴承,温度不能超过110℃。
4、安装角度:由风机的出风口方向决定安装角度,面对皮带轮侧,顺时针旋转为右。逆时针放置为左。
5、为防止电动机超电流。严禁敞口使用,如风机的出风口或者进风口未加任何外界阻力而进行空运转,则风机有烧毁的危险,为安全起见应在风机的出口或者入口管路中配备风阀,启动电机时将其关闭,转动后将风阀打开调到规定允许范围,并注意测量电机的电流是否超出规定值,一般测量值为额定电流值的70%-90%为正常,否则会导致超载而烧毁电动机。
6、为保证风机安全运行,用户在安装时必须配备电动机缺相保护装置。
7、电动机应有良好的接地。
8、风机在运行过程中,发现有异常声音、剧烈振动等情况应立即停机,切断电源,查明原因,排除故障后方可恢复运行。
9、订货时,必须说明风机的型号、规格、流量、全压、转速、出风口方向及左、右式。
10、如有特殊要求请在订货时说明。
11、产品如有更改恕不一一通知。
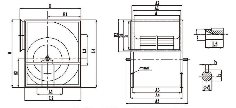
DKF系列前倾多翼离心通风机外形尺寸

DKF系列前倾多翼离心通风机性能参数表


集科技开发、产品设计、制造销售、安装服务为一体的现代化工科型经济实体
扫一扫 手机站